29/04/2025
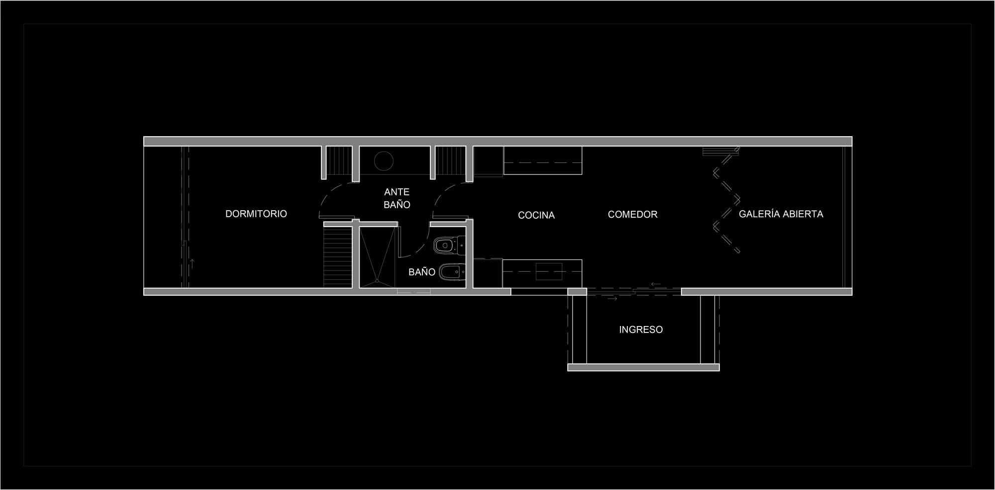
Esta variante de 55 m², ideal para dos, se construye con Steel Framing. Su sector social integra cocina, comedor y un estar en galería que puede cerrarse. El ingreso principal es lateral, ofreciendo resguardo. Un dormitorio con amplio ventanal de vidrio brinda gran luminosidad, y su diseño permite adosarse a medianeras con una fachada ciega. Es una opción rápida, económica y confortable.

